台南東區透天
首頁
│
新竹房屋
│
新竹房子
│
申請房仲網站
新竹房屋出售
新竹房屋出租
新竹土地出售
新竹土地出租
新竹法拍屋
新竹法拍地
新竹房仲
新竹房地產委託
關鍵字
現在位置:
首頁
>
台南房屋出售
>
東區房屋出售
>
台南東區透天-台南市東區中華東路三段
最後更新:15小時內
檢舉不實
│
列印
│
物件留言
|
觀看地圖
台南東區透天
台南東區透天
房屋資料
案名
文化中心~稀有釋出透天車庫,售1438萬
案號
3989
地址
台南市東區中華東路三段
台南市東區中華東路三段
最新交易狀態
帶看中
售價
售
1438萬
房屋類型
透天_別墅
總登記坪數
38.46 坪
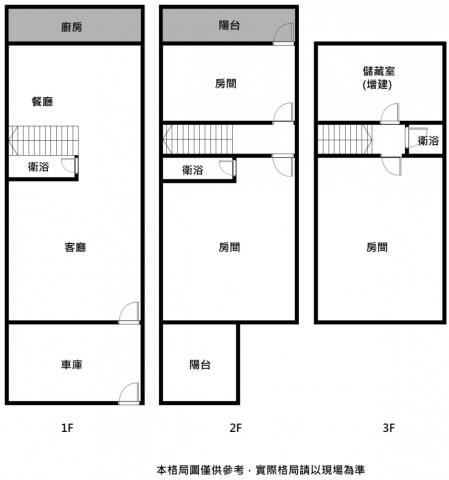
格局
4房
,2廳,3衛,2陽台,1廚房
屋齡
36年
每坪單價
37.39萬/坪
公設比
車位
室內車庫
座向
無障礙環境
有
法拍屋
本物件不是法拍屋
建物所在樓層
共3樓
管理費
管委會
沒有
中庭
沒有
電梯
沒有
是否為凶宅
不是
300公尺內嫌惡設施
面前道路
6米路
面寬
縱深
邊間
房屋銷售來源
不動產經紀人/專業仲介
房屋特色
近文化中心~中華東路三段~崇明14街~東區~榮譽街
坪數說明
建物登記總坪數
38.46
土地登記總坪數
25.34
主建物坪數
停車位坪數
附屬建物坪數
公共設施坪數
增建坪數
周邊環境
生活機能
鄰近交通
鄰近地標
公園綠地
鄰近學區
崇學國小,崇明國小,崇明國中
捷運站
房屋聯絡人資訊
聯絡人姓名
陳盈秀
(煩請告知聯絡人,您是在889房屋網看到這則廣告,真摯感恩您的幫忙)
手機
0928-010-990(陳盈秀)
電子信箱
Skype通話
Line加入好友
所屬公司名稱
誠昱不動產企業社(住商成大東興店)
公司電話
0928010990 (LINE)
公司傳真
公司地址
台南市永康區小北路30號
網 址
http://www.台南秀秀房仲網.tw
贊助商廣告
台南東區透天
東區透天-1
東區透天-2
東區透天-3
東區透天-4
東區透天-5
東區透天-6
東區透天-7
東區透天-8
東區透天-9
東區透天-10
東區透天-11
東區透天-12
東區透天-13
觀看地圖
到Google查看地圖
到Google查看街景
黃金熱銷物件
北區南園街
透天_別墅 / 4房
25.25 坪
售888萬
安南青砂街一段
透天_別墅 / 4房
31.04 坪
售1188萬
善化陽光北一路
透天_別墅 / 4房
64.5 坪
售2850萬
相似物件
永康永大路二段
透天_別墅/4房
38.37 坪
售1380萬
安南大安街
透天_別墅/3房
30.06 坪
售1250萬
七股大寮
透天_別墅/5房
71.67 坪
售1598萬
中西區海安路二段
透天_別墅/2房
18.61 坪
售1330萬
物件留言
請注意,如果您詢問的內容與物件不相符合或是廣告,經過審核,系統將會直接刪除您的發問內容
檢舉不實
東區華廈
│
東區電梯大廈
│
東區電梯大樓
│
東區大樓
│
東區大廈
│
東區電梯華廈
│
東區透天
│
東區透天厝
│
東區透天別墅
│
東區透天店面
│
東區大樓店面
│
東區公寓
│
東區店面
│
東區套房
│
東區辦公室
│
東區預售屋
│
東區豪宅
│
東區樓中樓
│
東區農舍
│
東區國宅
│
東區倉庫
│
東區辦公大樓
│
東區別墅
│
東區電梯別墅
│
東區廠房
│
東區廠辦
│
東區工業廠房
│
東區中古屋
│
東區新成屋
│
東區新房屋
│
東區新房子
│
東區成屋
│
東區建案
│
東區大樓建案
│
東區新建案
│
東區別墅建案
│
東區套房建案
│
東區透天建案
│
東區電梯透天
│
東區房地產
│
東區不動產
│
東區房屋仲介
│
東區房仲
│
●電話:07-7963288 ●電子信箱:
服務信箱
本網站保留一切權利,非經正式書面同意,禁止轉貼節錄。建議瀏覽解析度1024*768。
資料處理中,請稍後...
請注意:此案件已下架